Добро пожаловать на http://vipplan.ru

Випплан Ржев - это тысячи проектов домов в нашем каталоге!

Вы всегда сможете найти для себя проект дома вашей мечты! Даже если этого не случилось, мы готовы в любую минуту предложить проект индивидуального дома.

Забыли пароль?
Вы еще не регистрировались?

Перейдите по ссылке ниже на страницу регистрации.

Регистрация...

Внимание!!!

В проектную документацию могут быть внесены изменения любой сложности, в соответствии в Вашими пожеланиями!

Полезные статьи

Укладка тротуарной плитки

При укладке тротуарной плитки, необходимо соблюдать технологию, во избежание, разрушения и расшатывания покрытия. Первый этап - подготовка основания.  ...

Дом это прекрасное вложение

Современный рынок недвижимости диктует свои правила. Цены на землю и недвижимость в Ржеве постоянно растут и вынуждают по-другому смотреть на покупку собственного дома. Не только со стороны получения удобного, благоустроенного жилья, но и со стороны капитализации и инвестировании своих средств...

Проекты домов и коттеджей > Каталог проектов домов > Проект коттеджа с мансардой Vg1407

Проект коттеджа с мансардой Vg1407

Проект коттеджа с мансардой
Зарегистрируйтесь

Проект № Vg1407


Техническое описание
Общая площадь: 188.58 м2
Жилая площадь: 105.58 м2
Высота здания: 9.3 м
Размеры дома: 12.44м×13.24м
Кол-во комнат: 5
Цокольный этаж: нет
Гараж: нет
Мансарда: есть

Kонструкция
Фундамент: Свайно-ростверковый
Перекрытия: Монолитное ж/б
Материал стен: Опалубка

Архитектурный раздел
Конструктивный раздел
Инженерный раздел
Смета на строительство
АР+КР - 60 000 (Со скидкой 20%)
АР+КР+ИР - 126 150 (Со скидкой 50%)
Проект индивидуального одноэтажного жилого дома с мансардой с размерами здания 12,44 x 13,24 м. Наружная отделка здания – фасадная штукатурка. Фундамент – свайно-ростверковый (буронабивной). Наружные стены – по технологии несъемной опалубки и отделкой фасадной штукатуркой. Внутренние стены – по технологии несъемной опалубки. Перегородки – из газобетонного блока. Пол 1-го этажа – пол по грунту. Межэтажное перекрытие – монолитное ж/б. Перемычки: из профиля проката. Крыша – многоскатная. Кровля – металлочерепица. Окна – металлопластиковые. Лестница – монолитная ж/б.
Генплан застройки участка / Паспорт проекта 7000 руб / 10000 руб
Инженерный раздел (полный) 66150 руб (94500 руб)
Смета на строительство 35438 руб (47250 руб)
Теплотехнический расчет материалов стен Бесплатно
Стоимость проекта со незначительнми изменениями 70250 руб
Стоимость проекта со средними изменениями* 84500 руб
Стоимость проекта со значительными изменениями** 88200 руб

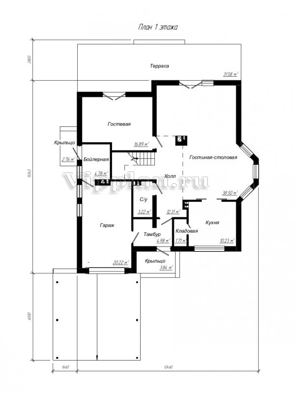
План первого этажа


Тамбур — 4,98 м2
Холл — 12,31 м2
Кухня — 10,23 м2
Кладовая — 1,71 м2
Гостиная — 38,50 м2
Гостевая — 16,89 м2
Бойлерная — 4,78 м2
Гараж — 20,22 м2
С/у — 3,22 м2

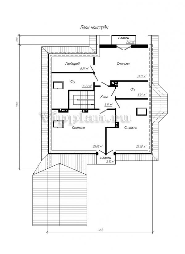
План мансардного этажа


Холл — 5,17 м2
С/у — 8,59 м2
Гардероб — 5,86 м2
Спальня — 14,82 м2
С/у — 4,51 м2
Спальня — 15,74 м2
Спальня — 19,63 м2
Балкон — 0,78 м2
Балкон — 0,63 м2
Проект коттеджа с мансардой Проект коттеджа с мансардой Проект коттеджа с мансардой Проект коттеджа с мансардой

Модификации проектов

Внесение изменений и привязка к участку строительства

В любой из проектов от компании VIPplan - Ржев по вашему желанию могут быть внесены изменения в материалы стен, материалы наружной отделки дома, а также будет произведена адаптация проекта под конкретный регион строительства (с учетом грунтов региона, геологических особенностей вашего участка и местных климатических условий) - БЕСПЛАТНО !!! (кроме проектов со скидкой и проектов наших партнеров).

Любой из проектов, размещенных на сайте rjev.vipplan.ru мы можем выполнить из требуемых вам строительных материалов: ячеистый бетон (газобетон, пеноблок), керамоблок, кирпич, шлакоблок, бетонный блок, дерево (брус, клееный брус), каркасная технология (деревянный каркас, металлокаркас (ЛСТК)).

Фасад дома и его наружную отделку так же возможно выполнить с применением различных облицовочных материалов: структурной штукатурки, (с утеплителем и без), сайдингом (пластиковый или металлосайдинг), фиброплитами, кирпича.

 
6 Избранные
проекты

Доставка проектов по России: Москва (Московская область), Санкт-Петербург (Ленинградская область), Краснодар, Ростов-на-Дону, Ставрополь, Сочи, Волгоград, Новосибирск, Белгород, Брянск, Воронеж, Саратов, Хабаровск, Астрахань, Нальчик, Владикавказ, Екатеринбург, Тюмень, Самара, Нижний Новгород, Казань, Пермь, Уфа, Челябинск, Красноярск, Ханты-Мансийск, Иркутск, Курган, Оренбург, Омск, Томск, Барнаул, Новокузнецк, Кемерово, Абакан, Чита, Якутск, Южно-Сахалинск, Петропавловск-Камчатский и страны ближнего зарубежья: Белоруссия, Украина, Казахстан