Добро пожаловать на http://vipplan.ru

Випплан Ржев - это тысячи проектов домов в нашем каталоге!

Вы всегда сможете найти для себя проект дома вашей мечты! Даже если этого не случилось, мы готовы в любую минуту предложить проект индивидуального дома.

Забыли пароль?
Вы еще не регистрировались?

Перейдите по ссылке ниже на страницу регистрации.

Регистрация...

Внимание!!!

В проектную документацию могут быть внесены изменения любой сложности, в соответствии в Вашими пожеланиями!

Полезные статьи

Проект дома

Строительство дома начинается с подготовительного этапа, основной частью которого является проект. Разработка дизайнерского проекта сопровождается оформлением документов после выбора участка....

Типы и разновидности кровли

Кровля состоит из сплошного настила, стяжки и обрешетки, поддерживающих стропила и несколько слоев изоляции, призванных уберечь кровельное пространство от негативного воздействия пара и влаги....

Проекты домов и коттеджей > Каталог проектов домов > Одноэтажный дом с террасой Vg970

Одноэтажный дом с террасой Vg970

Одноэтажный дом с террасой
Зарегистрируйтесь

Проект № Vg970


Техническое описание
Общая площадь: 85.7 м2
Жилая площадь: 54.55 м2
Высота здания: 7.87 м
Размеры дома: 12.02м×9.82м
Кол-во комнат: 4
Цокольный этаж: нет
Гараж: нет
Мансарда: нет

Kонструкция
Фундамент: буронабивной (свайно-ростверковый)
Перекрытия: деревянные балки
Материал стен: Газобетон

Архитектурный раздел
Конструктивный раздел
АР+КР - 44 000 (Со скидкой 20%)
Проект индивидуального одноквартирного одноэтажного жилого дома с размерами здания 12,02х9,82 м. Наружная отделка здания – облицовочный кирпич Фундамент - буронабивной (свайно-ростверковый). Ростверк - монолитный, ж/б. Наружные стены – газобетонный блок и облицовочный кирпич. Внутренние стены, перегородки – газобетон. Пол первого этажа – плиты перекрытия. Крыша - многоскатная. Материал кровли - металлочерепица. Окна - металлопластиковые, выполненные по индивидуальному заказу. Лестница выполняется по индивидуальному заказу.
Генплан застройки участка / Паспорт проекта 7000 руб / 10000 руб
Инженерный раздел (полный) 50000 руб
Смета на строительство 25000 руб
Теплотехнический расчет материалов стен Бесплатно
Стоимость проекта со незначительнми изменениями 52850 руб
Стоимость проекта со средними изменениями* 59300 руб
Стоимость проекта со значительными изменениями** 61000 руб

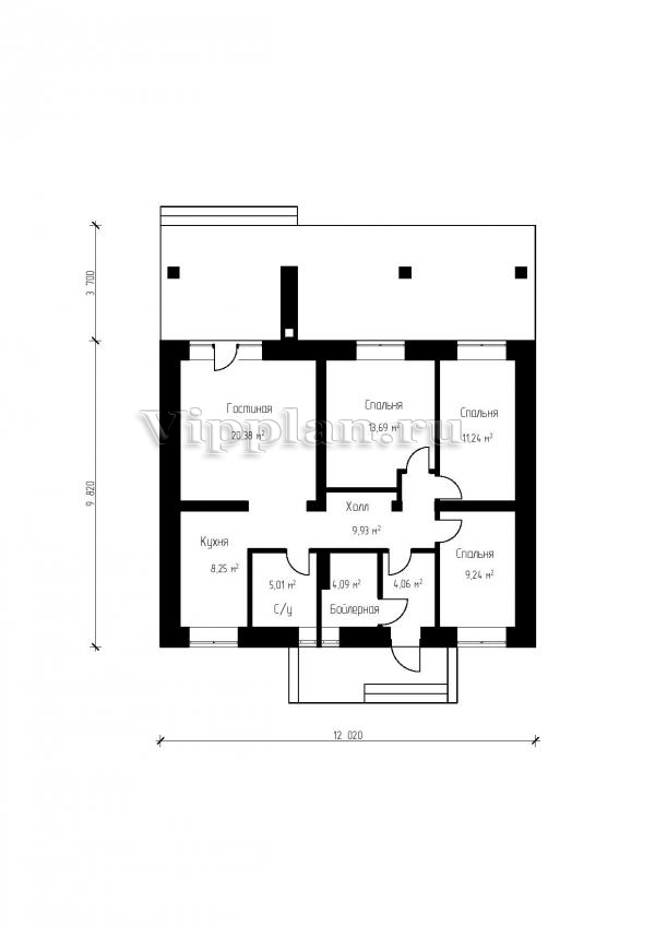
План первого этажа


Гостиная - 20,38 кв м
Спальня - 13,69 кв м
Спальня - 11,24 кв м
Спальня - 9,24 кв м
С/у - 5,01 кв м
Холл - 9,93 кв м
Бойлерная - 4,09 кв м
Тамбур - 4,06 кв м
Кухня - 8,25 кв м
Одноэтажный дом с террасой Одноэтажный дом с террасой Одноэтажный дом с террасой Одноэтажный дом с террасой
Внесение изменений и привязка к участку строительства

В любой из проектов от компании VIPplan - Ржев по вашему желанию могут быть внесены изменения в материалы стен, материалы наружной отделки дома, а также будет произведена адаптация проекта под конкретный регион строительства (с учетом грунтов региона, геологических особенностей вашего участка и местных климатических условий) - БЕСПЛАТНО !!! (кроме проектов со скидкой и проектов наших партнеров).

Любой из проектов, размещенных на сайте rjev.vipplan.ru мы можем выполнить из требуемых вам строительных материалов: ячеистый бетон (газобетон, пеноблок), керамоблок, кирпич, шлакоблок, бетонный блок, дерево (брус, клееный брус), каркасная технология (деревянный каркас, металлокаркас (ЛСТК)).

Фасад дома и его наружную отделку так же возможно выполнить с применением различных облицовочных материалов: структурной штукатурки, (с утеплителем и без), сайдингом (пластиковый или металлосайдинг), фиброплитами, кирпича.

 
6 Избранные
проекты

Доставка проектов по России: Москва (Московская область), Санкт-Петербург (Ленинградская область), Краснодар, Ростов-на-Дону, Ставрополь, Сочи, Волгоград, Новосибирск, Белгород, Брянск, Воронеж, Саратов, Хабаровск, Астрахань, Нальчик, Владикавказ, Екатеринбург, Тюмень, Самара, Нижний Новгород, Казань, Пермь, Уфа, Челябинск, Красноярск, Ханты-Мансийск, Иркутск, Курган, Оренбург, Омск, Томск, Барнаул, Новокузнецк, Кемерово, Абакан, Чита, Якутск, Южно-Сахалинск, Петропавловск-Камчатский и страны ближнего зарубежья: Белоруссия, Украина, Казахстан